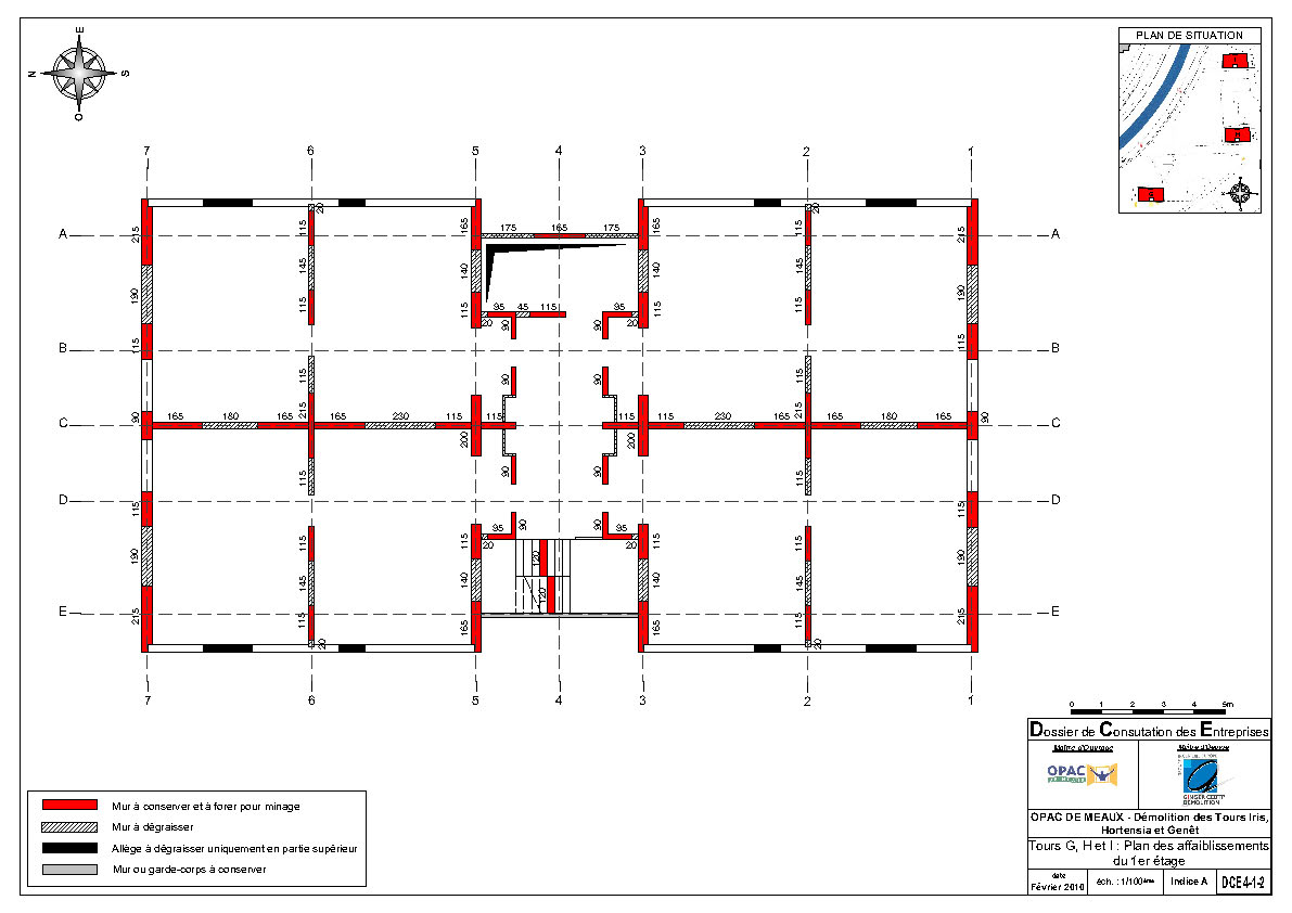
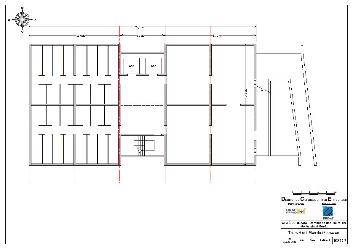
Les plans de préparation à la démolition des Tours Genêt, Hortensia et Iris (1er chantier d’expérimentation du projet Crash Box) sont disponibles à la consultation en ligne. À noter : le plan d’indication des niveaux minés (en page 15) et ceux, étage par étage chargé en explosifs, de leur affaiblissement mécanique. Documents GINGER-CEBTP DÉMOLITION.


























