|
|
| | |
|
Pardusol (mobilier ombrelles et banc)
1% artistique Collège Nathalie Sarraute
400 route d'Eoures - 13400
Aubagne
|
|
|
| ANNÉE |
2012
|
|
|
| COMMANDITAIRE |
Conseil Général des Bouches du Rhône
|
|
|
| MAÎTRE D'ŒUVRE |
Direction de l'Architecture et des constructions CG13
|
|
|
© Collège Nathalie Sarraute, vue de la cour
|
|
|
ŒUVRE
|
|
©M. Munari 2012
|
Le site du nouveau collège Joliot Curie (re-baptisé Nathalie Sarraute) est un site naturel remarquable. Il propose un rapport au paysage fort. Un des principaux objectifs du parti d'aménagement a été justement « d'ancrer le projet dans le paysage, de l'insérer harmonieusement dans son environnement ». Il a fallu pour se faire, exclaver des tonnes de roches calcaires, prendre à la nature pour donner à l'homme. Un des éléments significatif de cet environnement est l'arbre, être singulier, tout à la fois familier et étranger. L'arbre a la capacité à désigner, à signifier, voire à exercer une influence en tant que symbole. Il est symbole de l'homme, du cosmos, de la vie. Une symbolique implique un système, une complexité variée, interactive, organisée, totale et finalisée. Les arbres forment des systèmes, dans la nature comme dans l'imaginaire, les théories. En théorie des graphes, une arborescence est un graphe acyclique orienté possédant une unique racine, et tel que tous les noeuds sauf la racine ont un unique parent. En informatique, c'est également une structure de données récursive utilisée pour représenter ce type de graphes. C'est aussi ce principe qui est utilisé dans la représentation généalogique. En Syntaxe, enfin, l'arbre met en évidence la structure hiérarchique de la phrase et de ses constituants.
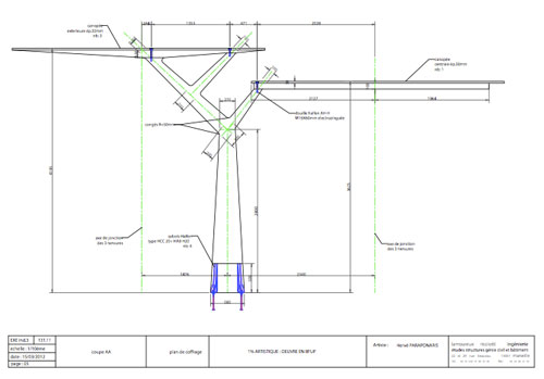
Caractéristiques techniques : Dimensions :L x H x P (en mm) : (8000 x 5000 x 5000) Matériaux : Bfup (Béton Fibré Ultra Performant) Technique de fabrication : Préfabrication par moulage Finition : Brut Pré-Étude : Géraldine Viellepeau (Architecte DPLG) Étude : B.E. Lamoureux Ricciotti Ingénierie Réalisation :Caro Ciment (Porrentruy CH.)
|
|
|
|
|
|
|
|
|